
MIL-PRF-83772C
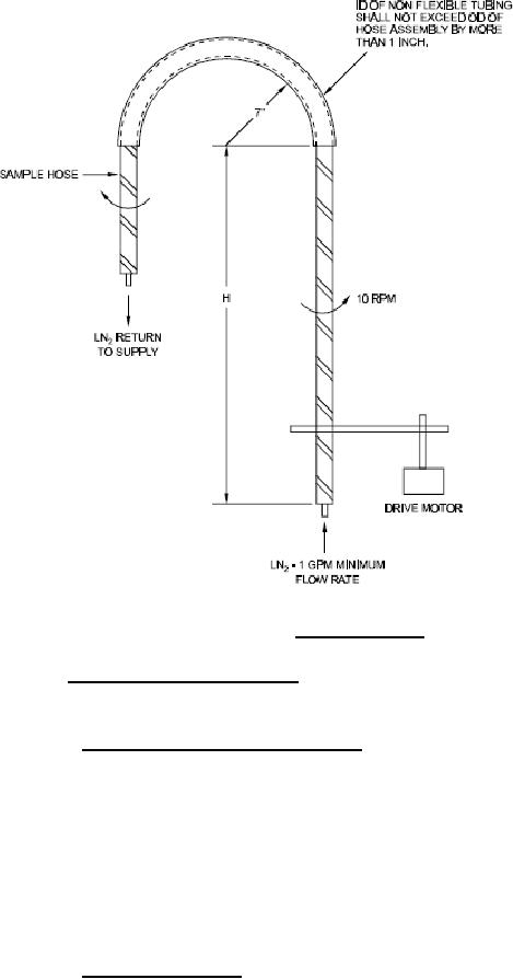
FIGURE 1. Bend radius test.
4.4.5 Tensile and temperature tests. The temperature test shall be run during the first 10
minutes of the 30 minute tensile test.
4.4.5.1 Outer hose surface temperature test. The male end of the hose assembly shall be
attached to a solid support and liquid nitrogen flowed through it and out of the other end at a
flow rate of at least 1 gpm. Three thermocouples shall be placed on the outer covering of the
hose assembly in order to record the surface temperature throughout the first 10 minutes of liquid
nitrogen flow. Two of the thermocouples shall be attached approximately 1 foot from either end
of the hose assembly, and the third shall be attached near the middle. No external heat source
shall be directed toward the hose or thermocouples during this test. The hose assembly
temperatures shall not fall below 15°F after liquid nitrogen has flowed through the hose for 10
minutes.
4.4.5.2 Tensile strength test. Without a break in the flow of liquid nitrogen per
paragraph 4.4.5.1, a flow of 1 gpm shall continue for additional 20 minutes. Immediately
following these 20 minutes, and just after the flow is stopped, a tensile force of 300 pounds shall
be applied at the free end of the hose. This pulling and stretching force shall remain for 1
7
For Parts Inquires call Parts Hangar, Inc (727) 493-0744
© Copyright 2015 Integrated Publishing, Inc.
A Service Disabled Veteran Owned Small Business