
MIL-DTL-52471/2C
TABLE V. 3/4-inch hose assemblies - Continued.
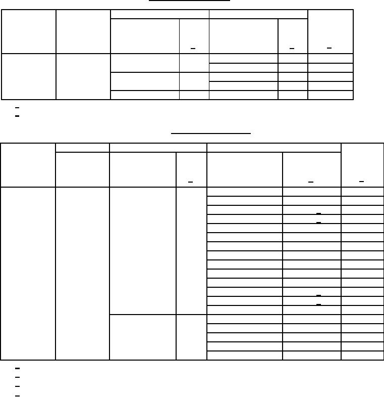
ID
Fitting X (see figure 1)
Fitting Y (see figure 1)
Assembly
Hose size
Hose
code
Bend
Bend
Inch fraction
number
PIN
PIN
PIN
angle
angle
Inch decimal
2/
1/
1/
(mm)
M52525/11-12-12
45°
B487
M52525/10-12-12
0°
3/4
M52525/12-12-12
90°
B489
M52471/5-12
.750
M52525/11-12-12
45°
B496
M52525/11-12-12
45°
(19.05)
M52525/12-12-12
90°
B498
M52525/12-12-12
90°
M52525/12-12-12
90°
B503
1/ Reference MIL-DTL-52471 for hose assembly bend angles and displacement angles used in the PIN.
2/ A suffix indicating plating finish shall be specified with the assembly code number, see table X.
TABLE VI. 1-inch hose assemblies.
ID
Hose
Fitting X (see figure 1)
Fitting Y (see figure 1)
Assembly
Hose size
code
Bend
Bend
Inch fraction
number
PIN
PIN
PIN
angle
angle
Inch decimal
2/
1/
1/
(mm)
M52525/1-16-16
0°
B601
M52525/2-16-16
45°
B602
M52525/3-16-16
90° 3/
B603
M52525/4-16-16
90° 2/
B604
M52525/10-16-16
0°
B605
M52525/10-16-20
0°
B606
M52525/11-16-16
45°
B607
M52525/1-16-16
0°
M52525/11-16-20
45°
B608
M52525/12-16-16
90°
B609
1
1.000
M52471/5-16
M52525/12-16-20
90°
B610
(25.40)
M52525/2-16-16
45°
B615
M52525/3-16-16
90° 3/
B616
M52525/4-16-16
90° 4/
B617
M52525/10-16-16
0°
B618
M52525/10-16-20
0°
B619
M52525/11-16-16
45°
B620
M52525/2-16-16
45°
M52525/11-16-20
45°
B621
M52525/12-16-16
90°
B622
M52525/12-16-20
90°
B623
1/ Reference MIL-DTL-52471 for hose assembly bend angles and displacement angles used in the PIN.
2/ A suffix indicating plating finish shall be specified with the assembly code number, see table X.
3/ 90 short drop fitting.
4/ 90 long drop fitting.
7
For Parts Inquires call Parts Hangar, Inc (727) 493-0744
© Copyright 2015 Integrated Publishing, Inc.
A Service Disabled Veteran Owned Small Business